Hyppää sisältöön

Kiviniityn päiväkoti – rakennusprojekti

Tällä sivulla seurataan uuden Kiviniityn päiväkodin rakennusprojektin etenemistä. Sivu on päivitetty 11.5.2026

Taustaa

Kaupunki rakentaa Kiviniittyyn uuden päiväkodin. Kaksikerroksinen uudisrakennus kohoaa samalle tontille, jolla on toiminut päiväkoti vuosina 1975-2021. Vanha sisäilmaongelmista kärsinyt rakennus purettiin kevään ja kesän 2025 aikana.

Uudessa päiväkodissa on tilat 8–10 lapsiryhmälle. Yksikkö tulee vastaamaan koko Kokkolan vuorohoidon tarpeeseen.

Liittymä tontille siirtyy Tehtaankadun puolelle.

Hankkeen aikataulu

  • 8/2025 Rakentamislupa myönnetty
  • 2/2026 Urakkatarjoukset
  • 04/2026 Työmaa on perustettu ja maanrakennustyöt tontilla ovat alkaneet
  • 07/2027 Rakennus valmistuu

Faktoja kohteesta

Kiviniityn päiväkoti

  • Kaksikerroksinen rakennus, jossa tilat 8–10 lapsiryhmälle.
  • Rakennuksen koko 2659 m2.
  • Julkisivu tiilestä, kantava rakenne betonielementti
  • Pääasiallinen lämmitysmuoto kaukolämpö, lisäksi aurinkopaneelit
  • Suunnittelu: ARCO Architecture Company Oy
  • Pää- ja rakennusurakoitsija: Rakennusliike Sorvoja Oy
  • LVIA- & Sprinkleriurakka: Ab G. Koskela Oy
  • sähkö- & AV-urakka: Sähköpalvelu Walberg Ab Oy
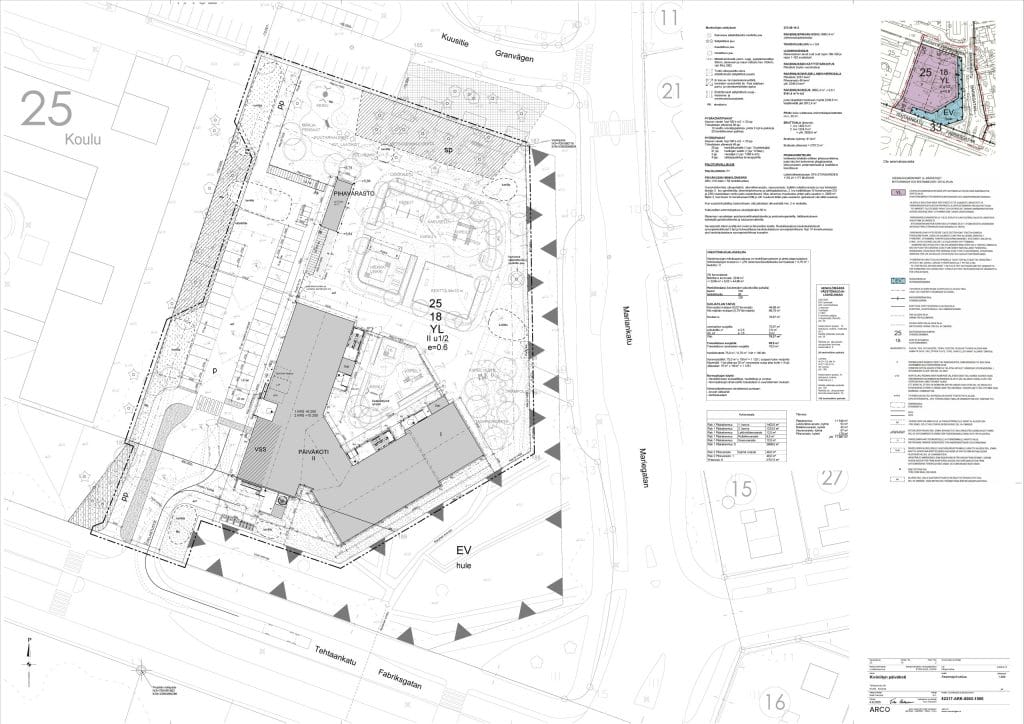
Asemapiirustus Kiviniityn uuden päiväkodin sijoittelusta tontille
Asemapiirustus rakennuksen sijoittelusta tontille. Kuva aukeaa suurempana alla olevasta linkistä.